令和7年一級建築士設計製図試験当社答案用紙Ⅰ解答例配信中

令和7年一級建築士設計製図試験当社解答例配信中
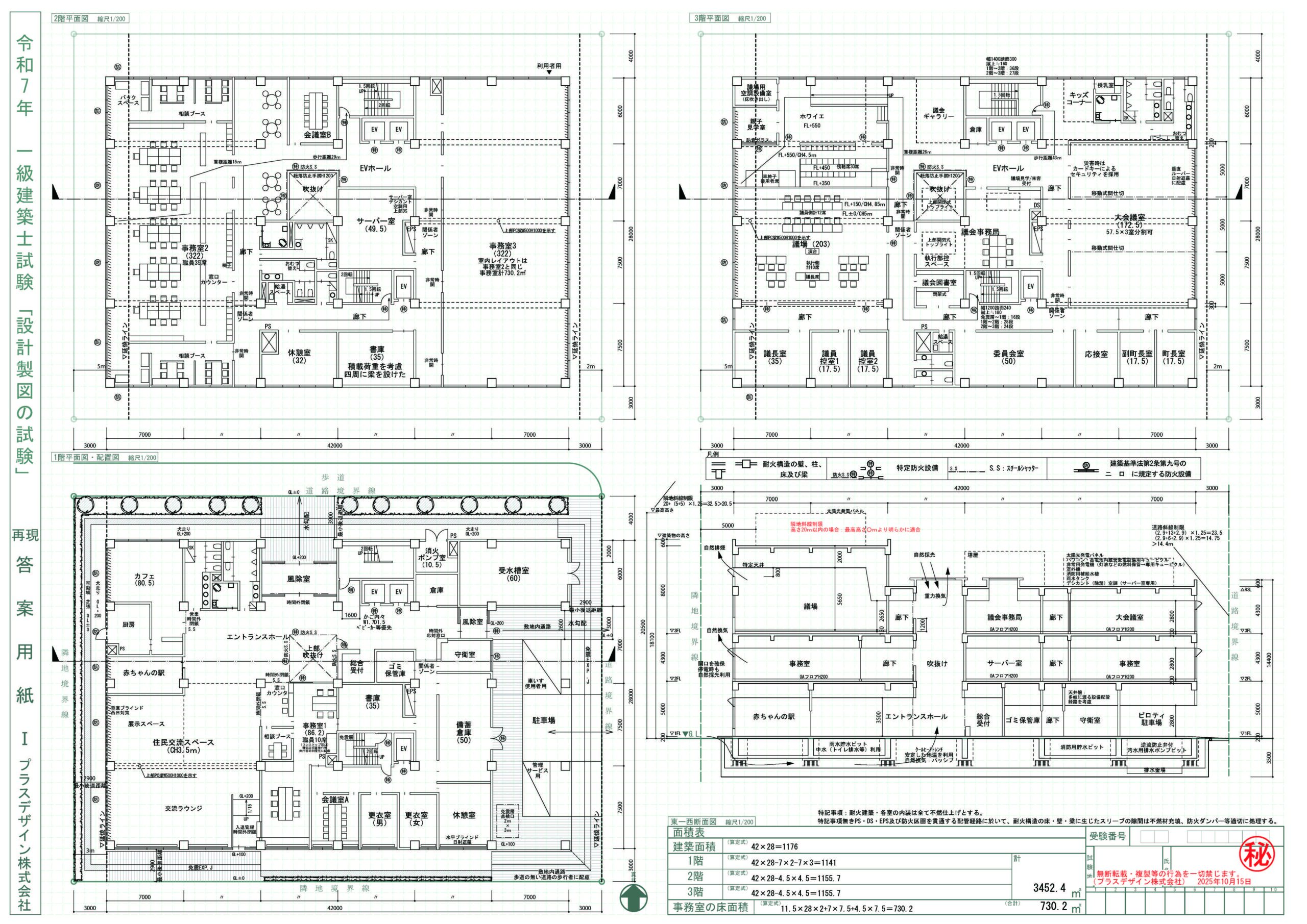
現在、添削等をご参加いただきました方につきましては、
当社の標準解答例等を配信しております。
(こちらは計画の要点解答例の画像となります。)
是非、自身の添削及び評価と合わせて、
解答例などをご参照頂ければ幸いです。

現在、添削等をご参加いただきました方につきましては、
当社の標準解答例等を配信しております。
(こちらは計画の要点解答例の画像となります。)
是非、自身の添削及び評価と合わせて、
解答例などをご参照頂ければ幸いです。